206 W MIRROR LAKE DRIVE, Fruitland Park, FL 34731
- 4 beds |
- 2 baths |
- 2,121 sqft
Single-Family Home
Built in 1975
0.45acre lot
—— car garage
$183/sqft
Listed 14 hours ago
Property Description
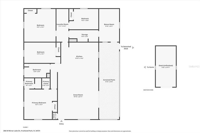
Lovely 4 bedroom, 2 bathroom home on corner lot with no homes behind is perfect for an active family. Roof 2023, HVAC 2021 and Hot Water Heater 2015. With ample living space, extra storage, large bedrooms, fenced in yard with no homes behind, and large enclosed porch you get the best of inside and outside! This home features a covered entry and convenient parking pad at the front. Step inside to find a spacious open floor plan designed for comfortable living and entertaining. The great room showcases wood ceilings with decorative beams, chair rail detailing, and sliding doors leading to the screened, covered lanai overlooking the large, fenced yard offers privacy and peaceful views. The open kitchen boasts a large wood-topped island with a breakfast bar and sink, Jenn-Air cooktop, built-in oven, pantry closet, beverage refrigerator, and second sink, making it perfect for cooking and entertaining. The master bedroom features an ensuite bath with a walk-in shower, dual closets—one walk-in and one built-in with shelving—for extra storage. A split bedroom design ensures privacy and space for all. The bonus room offers versatility as a gym or workout space, complete with rubber tile flooring and direct access to the screened and covered lanai. Leading to the bonus room is a large storage space offering room for organization while serving as a seamless passage to the adjoining room. Enjoy the convenience of an interior laundry closet with a new washer and dryer, making chores a breeze. Outside, the large fenced yard provides a safe haven for pets and family, complemented by a storage shed for all your outdoor needs. Additional highlights include wood-look laminate, carpet, and vinyl flooring, new T1-11 exterior siding, exterior storage shed, gutters all around, security cameras, fiber optics availability, and a single driveway along the side of the home. This home combines comfort, charm, and functionality—ready for you to move in and make it your own! Close to downtown Fruitland Park, City Hall, the Library and many churches. Easy access to shopping on CR 466A. Call to make your appointment to see it today!
- Listing Status:
- Active
- Date Added:
- October 10, 2025 at 05:00AM
- Listing Office:
- KELLER WILLIAMS CORNERSTONE RE : 352-233-2200
- Listing Agent:
- Karen Kamperman : 352-390-4800
- MLS ID:
- G5102944

- General: LightingRain GuttersSliding DoorsStorageShed(s)Storage
- Style: Contemporary
- Roofing: Shingle
- Windows: BlindsWindow Treatments
- General: Wood FrameWood SidingOneSlab
- Road/Access: Paved
- Originating MLS: Stellar MLS
- County: Lake
- Zoning: R-2FRUITLAND PARK BEG 30 FT N 89-31-0 W & 663.2 FT S 0-35-30 W OF NE COR OF NW 1/4 OF 9-19-24 RUN S 0-35-30 W 161.7 FT N 88-45-20 W 123.3 FT N 0-47-40 E 160.05 FT S 89-31-0 E 122.7 FT TO POB BEING PART OF BLK 30 PB 3 PGS 8-9 ORB 4916 PG 28091924040003000019
- Fencing: Chain LinkFencedWood
- Utilities: Cable AvailableElectricity AvailableElectricity ConnectedPhone AvailableSewer ConnectedWater Connected
- Water: Public
- Sewer: Septic Tank
- Source: Stellar MLS
This listing courtesy of Karen Kamperman, KELLER WILLIAMS CORNERSTONE RE
Monthly Payment
- Principal & Interest $
- Property Taxes $
- Home Insurance $
- VA Funding Fee $
Location
Schools Nearby
Fruitland Park Elementary School
304 W Fountain St, Fruitland Park, FL, 34731
Grades PK-5
0.30 miles away
Lake Academy Leesburg
2020 Talley Rd, Leesburg, FL, 34748
Grades KG-12
1.66 miles away
Lake Academy Leesburg
2020 Talley Rd, Leesburg, FL, 34748
Grades KG-12
1.66 miles away