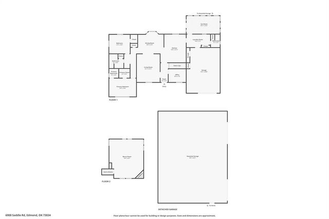
6900 Saddle Road, Edmond, OK 73034
- 3 beds |
- 3 baths |
- 1,992 sqft
Single-Family Home
Built in 1976
10.14acre lot
1 car garage
$326/sqft
Listed 1 month ago
Property Description
Tucked in the heart of Edmond, right across from Lake Arcadia, this rare find offers just over 10 wooded acres with a private pond, and room for every outdoor need. It feels like a true wooded country retreat, yet you are only minutes from I-35, top-rated Edmond schools, shopping, and dining. The property boasts a massive shop large enough to fit three RVs and a barn for extra storage or hobbies. The home spans just under 2,000 square feet with two full baths, one half bath, beautiful wood beams, a dedicated office, and an oversized garage. The spacious kitchen with Corian countertops opens to the dining room, where a charming bay window frames views you will not find anywhere else. Upstairs, a large flex space works perfectly as a game room, media room, playroom, or whatever your lifestyle calls for. A full bath off the generous utility room adds everyday convenience for busy households and outdoor living. Acreage, location, a private pond, and an incredible shop rarely come together in one place. Selling As-Is, with mineral rights to remain with the seller.
- Listing Status:
- Pending
- Listing Office:
- The Agency : 405-216-3693
- Listing Agent:
- Anna Sullivan : 405-415-5732
- MLS ID:
- 1206560

- Appliances: DishwasherMicrowaveWater Heater
- Flooring: CarpetTile
- A/C: Central Elec
- Heating: Central Electric
- Fireplace: Metal InsertFireplaces: 1
- General: Barn(s)PondWorkshop
- Style: Ranch
- Roofing: Composition
- General: Brick & FrameOne and one-halfSlab
- Originating MLS: mlsok
- School District: Edmond
- County: Oklahoma
- Zoning: 6900NONESaddle73034
- Fencing: Chain
- Utilities: Electricity AvailableSeptic TankPrivate Well Available
- Source: mlsok
This listing courtesy of Anna Sullivan, The Agency
Monthly Payment
- Principal & Interest $
- Property Taxes $
- Home Insurance $
- VA Funding Fee $
Location
Schools Nearby
Redbud Elementary School
3800 N Douglas Blvd, Edmond, OK, 73013
Grades KG-5
2.71 miles away
Sequoyah Middle School
1125 E Danforth Rd, Edmond, OK, 73034
Grades 6-8
4.27 miles away
Memorial High School
1000 E 15th St, Edmond, OK, 73013
Grades 9-12
4.64 miles away






