3128 Pennington Street, Harrah, OK 73045
- 4 beds |
- 2 baths |
- 1,853 sqft
Single-Family Home
Built in 2025
6,325sqft lot
2 car garage
$141/sqft
Listed 1 month ago
Property Description
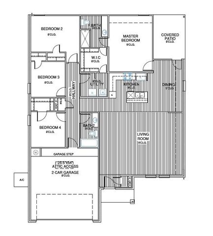
Welcome to the Finley floor plan in the desirable Harrah Pointe community! This beautifully designed home offers 1,853 sq ft of living space with 4 bedrooms, 2 bathrooms, and a smart, open layout that blends comfort and function—perfect for modern lifestyles. The spacious kitchen features a large center island, elegant cabinetry, and ample counter space, all overlooking the dining area and oversized living room. This open-concept design is ideal for entertaining or simply enjoying everyday life. A covered back patio extends your living space outdoors, offering a relaxing space for year-round enjoyment. The private primary suite is thoughtfully placed at the back of the home and includes a large walk-in closet and a well-appointed en-suite bathroom. One of the most convenient features of this plan is the oversized laundry room with direct access to the primary closet—making daily routines more efficient and organized. Three secondary bedrooms are situated on the opposite side of the home, providing flexibility for guests, a home office, or additional living space. Built with energy efficiency and long-term value in mind, the Finley includes a tankless hot water heater, low-e Thermalpane windows, and upgraded insulation to help reduce energy costs. Structural highlights include durable exterior materials and integrated tornado safety features for added peace of mind. Located just minutes from the Kickapoo Turnpike, I-40, and Tinker Air Force Base, Harrah Pointe combines convenience with small-town charm. Residents enjoy access to the top-rated Harrah School District and a close-knit community atmosphere. Schedule your private tour of the Finley today—homes like this don’t last long!
- Listing Status:
- Pending
- Data Last Updated:
- March 12, 2026 at 10:23PM
- Listing Office:
- Central Oklahoma Real Estate : 405-445-8361
- Listing Agent:
- John Burris : 405-229-7504
- MLS ID:
- 1209702

- General: Ceiling Fan(s)Combo WoodworkLaundry Room
- Appliances: DishwasherDisposalMicrowave
- Flooring: CarpetOtherTile
- A/C: Central Elec
- Heating: Gas
- Fireplace: Fireplaces: 0
- General: Patio - Open
- Style: Traditional
- Roofing: Composition
- General: Brick & FrameOneSlab
- HOA Amenities: Greenbelt375.0
- Originating MLS: mlsok
- School District: Harrah
- County: Oklahoma
- Zoning: 3128NONEPennington73045
- Utilities: Public
- Source: mlsok
This listing courtesy of John Burris , Central Oklahoma Real Estate
Monthly Payment
- Principal & Interest $
- Property Taxes $
- Home Insurance $
- VA Funding Fee $
Location
Schools Nearby
Clara Reynolds Elementary School
755 Harrison St, Harrah, OK, 73045
Grades 2-3
2.94 miles away
Harrah Middle School
1480 N Dobbs Rd, Harrah, OK, 73045
Grades 6-8
3.61 miles away
Harrah High School
20370 Elm St, Harrah, OK, 73045
Grades 9-12
3.80 miles away






