1687 Bloomington Court, Newcastle, OK 73065
- 3 beds |
- 3 baths |
- 1,991 sqft
Single-Family Home
Built in 2026
7,200sqft lot
2 car garage
$173/sqft
Listed 1 month ago
Property Description
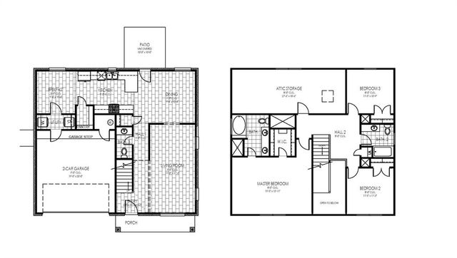
NOW UNDER CONSTRUCTION – Reserve Today! Take advantage of this rare opportunity to reserve the sought-after Olivia floor plan in the desirable Farmington community before completion! This thoughtfully designed two-story layout offers open-concept living, spacious bedrooms, and an oversized kitchen island, perfect for everyday life and entertaining alike. The kitchen is equipped with stainless steel Samsung appliances, including a 5-burner gas range, expansive counter space, abundant cabinetry, and an oversized walk-in pantry with bright lighting, perfect for those who need both function and style. Additional features include: • Quartz countertops • Wood-look ceramic tile in main living areas • Full sod and landscaping for curb appeal and low maintenance • Energy-efficient design including a tankless hot water heater, low-e thermal pane windows, and radiant barrier decking for year-round comfort and lower utility costs
- Listing Status:
- Active
- Data Last Updated:
- March 13, 2026 at 2:24AM
- Listing Office:
- Central Oklahoma Real Estate : 405-445-8361
- Listing Agent:
- John Burris : 405-229-7504
- MLS ID:
- 1209314

- General: None
- Style: Traditional
- Roofing: Composition
- General: Brick & FrameTwoSlab
- HOA Amenities: Greenbelt250.0
- Originating MLS: mlsok
- School District: Newcastle
- County: McClain
- Zoning: 1687NONEBloomington73065
- Utilities: Cable AvailableElectricity AvailableNatural Gas AvailablePublic
- Source: mlsok
This listing courtesy of John Burris , Central Oklahoma Real Estate
Monthly Payment
- Principal & Interest $
- Property Taxes $
- Home Insurance $
- VA Funding Fee $






