435562 E 1630th Road, Tuskahoma, OK 74574
- 4 beds |
- 3 baths |
- 4,200 sqft
Single-Family Home
Built in 1998
4acre lot
2 car garage
$143/sqft
Listed 4 months ago
Property Description
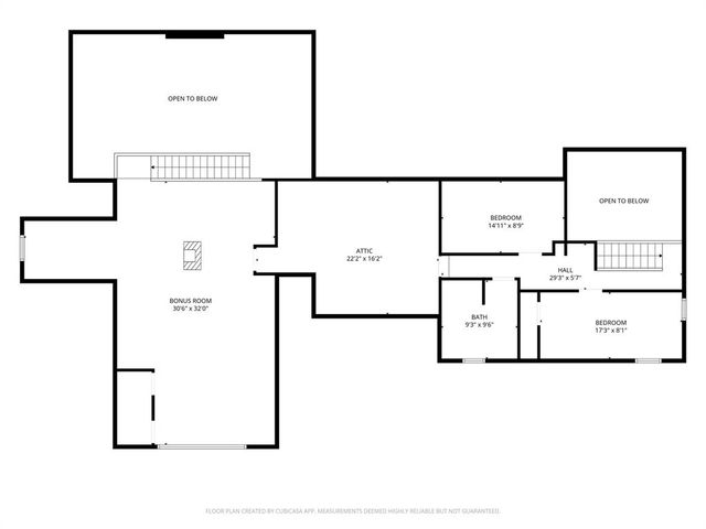
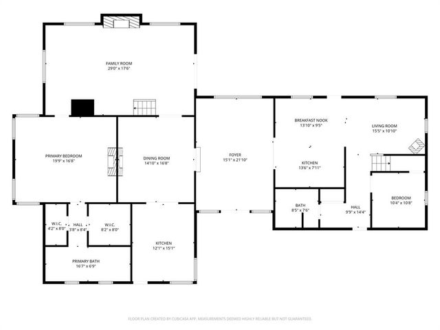
4 BR 3 BA 4,200+ Sq Ft Log Home on 4 Acres in Clayton / Tuskahoma, OK Fully Furnished • STR/LTR Ready • RV Income Potential Discover your next adventure or your next income stream in this beautifully crafted 4-bedroom, 3-bath log home, offering more than 4,200 sq. ft. of rustic elegance and modern comfort. Set on 4 manicured, fenced acres in a peaceful, parklike setting, this property is perfectly positioned for short-term rentals, long-term tenants, multi-family living, or RV income opportunities. Located minutes from Sardis Lake, the mountain region, and the Choctaw Nation Headquarters—a year-round hub for events, especially the iconic Labor Day Celebration—this home is an ideal retreat for hunters, anglers, vacationers, and outdoor enthusiasts. Property Highlights 4 Spacious Bedrooms + Loft Bonus Room Ideal for large groups, outfitter teams, bunk setups, or extended family.3 Full Bathrooms Flexible layout creates natural separation for multi-unit rental potential or in-law suites. Separate septic tanks & electric meters in place. Two Kitchen Areas Perfect for entertaining, hosting multiple families, or STR versatility .Three Fireplaces + Wood Stove Located in the kitchen, main living area, and primary suite—plus a wood stove in the second living space. Newer Kitchen Appliances, HVAC, & Hot Water Heater Flooring: Hardwood, tile, and carpet throughout. Garages & Access 2-Car Garage Workbench, enclosed storage cabinets, wired for 220V.Attached Lean-To Carport Three Gated Entry Points Including two automatic solar-powered gates for easy access. Paved County Roads right to the driveway. Outdoor Features X-Large Deck Perfect for morning coffee, evening drinks, wildlife watching, or hosting guests under the stars. Seasonal Pond at the front of the property deer and wildlife visit daily. 4 Acres of Fenced, Land Bring your ATVs, campers, RVs, or set up additional outdoor recreation spaces. a year round. Investment
- Listing Status:
- Active
- Data Last Updated:
- April 8, 2026 at 7:21AM
- Listing Office:
- eXp Realty, LLC : 888-560-3964
- Listing Agent:
- Dawn Hibben : 580-743-3174
- MLS ID:
- 1202454

- General: Covered DeckDeck-OpenPond
- Style: Traditional
- Roofing: Metal
- General: LogStoneTwoCombination
- Originating MLS: mlsok
- School District: Tuskahoma
- County: Pushmataha
- Zoning: 435562E1630th74574
- Fencing: Combination
- Utilities: Cable AvailableElectricity AvailableRural Water
- Source: mlsok
This listing courtesy of Dawn Hibben , eXp Realty, LLC
Monthly Payment
- Principal & Interest $
- Property Taxes $
- Home Insurance $
- VA Funding Fee $
Location
Schools Nearby
Tuskahoma Public School
165269 N 4356 Rd, Tuskahoma, OK, 74574
Grades PK-8
4.63 miles away
Tuskahoma Public School
165269 N 4356 Rd, Tuskahoma, OK, 74574
Grades PK-8
4.63 miles away
