1008 Redwood Creek Drive, Yukon, OK 73099
- 3 beds |
- 2 baths |
- 1,722 sqft
Single-Family Home
Built in 2025
6,090sqft lot
2 car garage
$178/sqft
Listed 4 months ago
Property Description
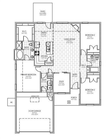
The Bella is a thoughtfully designed three-bedroom, two-bathroom split floor plan that offers both functionality and charm, complete with a versatile flex space—perfect for a home office, craft room, or playroom—with a large window for natural light and a beautiful barn door for added privacy. Currently under construction, this home can be reserved prior to completion—call today for the current stage! The L-shaped kitchen offers generous prep space and an efficient workflow, featuring a spacious island, stainless steel Samsung appliances including a 5-burner gas range, soft-close cabinets, under-cabinet lighting, and granite or quartz countertops. Durable wood-look ceramic tile flooring extends through the main living and dining areas, anchored by a stunning stone fireplace that creates a warm, inviting atmosphere. The primary suite is a relaxing retreat with a soaking garden tub, tiled walk-in shower, dual vanity, and large walk-in closet, while the opposite side of the home features two spacious secondary bedrooms, a full bathroom, and built-in hallway cabinets for extra storage. Energy-efficient features include a tankless hot water heater, low-E thermal pane windows, and radiant barrier decking for year-round comfort and savings. Located in Sycamore Gardens, with quick access to I-40 and just minutes from Will Rogers Airport, Oklahoma City Community College, Hobby Lobby Headquarters, Tinker AFB, and more, this home also offers access to two community parks with playgrounds, covered picnic areas, a basketball court, and a splash pad. Don’t miss your chance—call today to learn more and reserve this beautiful home before it’s gone!
- Listing Status:
- Pending
- Listing Office:
- Central Oklahoma Real Estate : 405-445-8361
- Listing Agent:
- John Burris : 405-229-7504
- MLS ID:
- 1190435

- General: Combo Woodwork
- Appliances: DishwasherDisposalMicrowave
- Flooring: Combo
- A/C: Central Elec
- Heating: Central Gas
- Fireplace: Metal InsertFireplaces: 1
- General: Patio - Open
- Style: Traditional
- Roofing: Composition
- General: BrickOneSlab
- HOA Amenities: Greenbelt175.0
- Originating MLS: mlsok
- School District: Mustang
- County: Canadian
- Zoning: 1008NONERedwoodCreek73099
- Utilities: Cable AvailableElectricity AvailableNatural Gas Available
- Source: mlsok
This listing courtesy of John Burris, Central Oklahoma Real Estate
Monthly Payment
- Principal & Interest $
- Property Taxes $
- Home Insurance $
- VA Funding Fee $
Location
Schools Nearby
Mustang Trails Elementary School
12025 SW 15th Ter, Yukon, OK, 73099
Grades PK-4
0.37 miles away
Mustang North Middle School
10901 SW 15th St, Yukon, OK, 73099
Grades 7-8
1.35 miles away
Mustang High School
801 S Snyder Dr, Mustang, OK, 73064
Grades 9-12
4.94 miles away






